Skip to content
Residential
Modular Homes
Manufactured Homes
Development
Multi Family
Commercial
Lot Models
The Process
About
Residential
Modular Homes
Manufactured Homes
Development
Multi Family
Commercial
Lot Models
The Process
About
Contact Us
Dynamic “The Chalet”
Home
/
Lot Models
/
Dynamic “The Chalet”
Sold
Home Specs
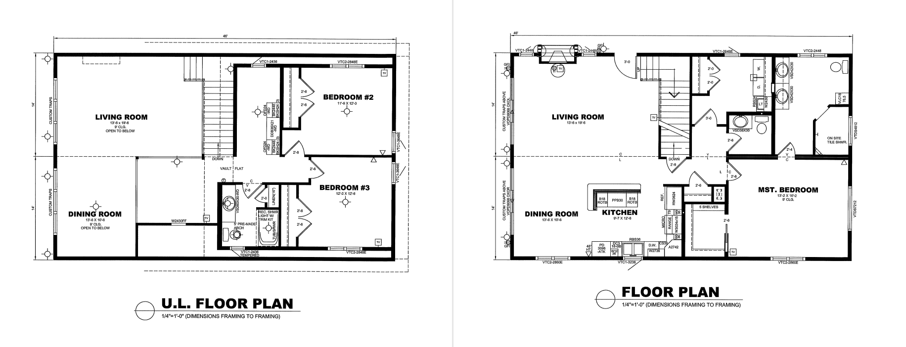
Dimensions 28' x 46'
1987 Square Feet
3 Bedrooms
2.5 Bathrooms
3D Tour
Floor Plan
The Chalet by Dynamic homes
Floor Plan
Explore More of Our Lot Models
View Only
Northstar Systembuilt “Maxwell”
1860
3
2
View Details
3D Tour
Sold
MidCountry “Westlake Ranch” – John Ave
1579
3
2
View Details
3D Tour
Sold
MidCountry “Retreat” – Logan Ave
1387
3
2
View Details
3D Tour
View Only
Northstar Systembuilt “Maxwell”
1860
3
2
View Details
3D Tour
Sold
MidCountry “Westlake Ranch” – John Ave
1579
3
2
View Details
3D Tour
Home
Home Types
Modular Homes
Manufactured Homes
Multi Family Homes
Commercial Buildings
Lot Models
Completed Projects
The Process
About
Gallery
Blog
Contact
3680 Alan Syverson Drive Barnum, Minnesota 55707
(218) 389-3335
contact@idealhomesmn.com